South Riverdale Addition

Basement 884 sq.ft. | Ground 849 sq.ft. | Second 715 sq.ft. | Third 589 sq.ft

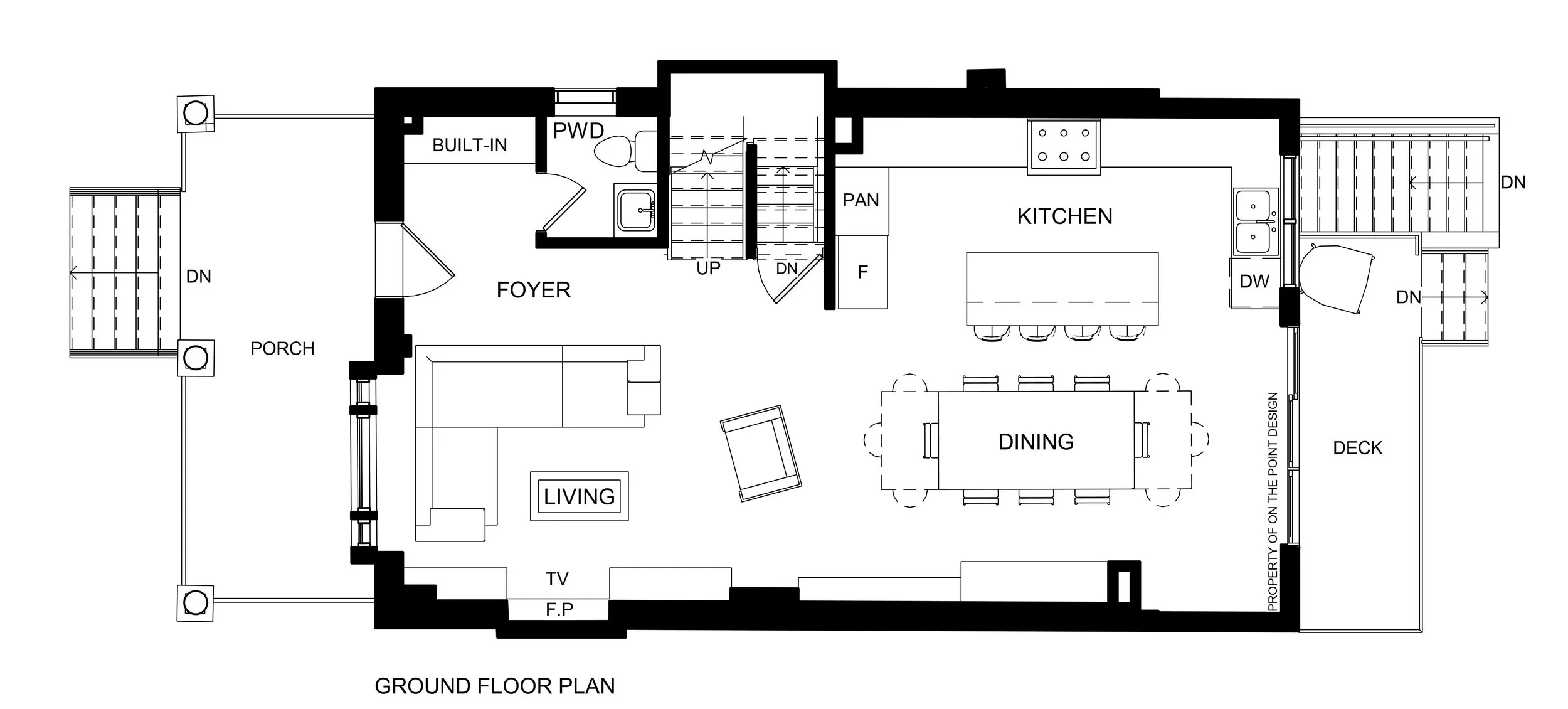
The 1-storey rear addition plus basement to the existing house laid way to a full redesign of the basement and ground floor layouts. The basement now has an open rec room along with a mudroom space by the walk-out stairs to the backyard. The study can double as a guest room and there’s a 3-piece bathroom and laundry space within the mechanical room. The load-bearing wall and posts on the ground floor were removed to open up the space from front to back. A powder room was added off the foyer and the kitchen was expanded to fit a 4-seat island. The rear deck sits over a portion of the basement. On the exterior, the vertical dark grey siding relates to the front porch colours while the black windows and doors push toward a modern aesthetic. The patio leads to backyard parking off the laneway.

Previous
Previous

West Bend Renovation - In Construction

Next
Next

Upper Beaches Addition - In Construction