Little Italy Renovation

Basement 843 sq.ft. | Ground 843 sq.ft. | Second 843 sq.ft. 

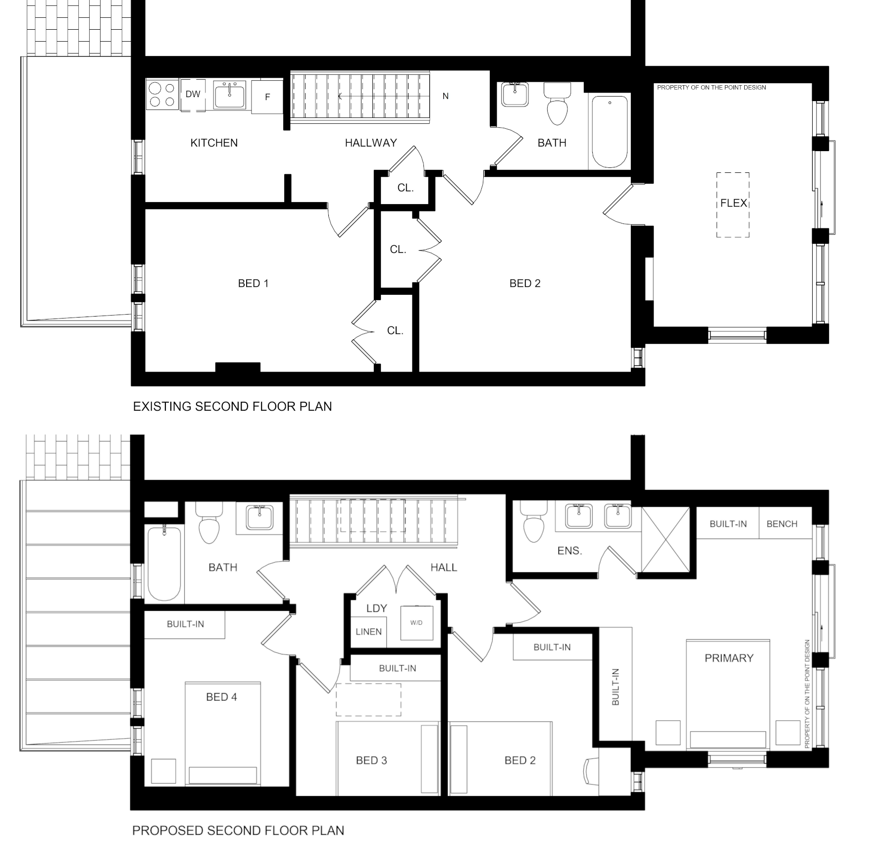
The existing two-storey semi-detached house had been converted into a duplex over the years. In this case, the house was converted back into a single-family dwelling but was still left with potential to have a basement rental unit in the future. The basement was underpinned to have an 8’ tall ceiling and holds an open rec room space with wet bar along with a 3-piece bathroom, mechanical room and storage area. The ground floor was completely opened up from front to back to have an open concept kitchen/living/dining space along with a family room and compact powder room. The second floor was reconfigured to have a primary bedroom at the rear of the house with a 4-piece ensuite along with 3 other bedrooms, a 3-piece bathroom, and a laundry closet. A skylight over the stairs brings light into the hallway and down to the ground floor below.

The exterior was refreshed by staining the brick white, painting the windows and doors black, and replacing the roofing throughout. The backyard has a cozy vibe as it’s framed in by a rear garage on a laneway.


Previous
Previous

Markham Custom Home - In Construction

Next
Next

West Bend Renovation - In Construction