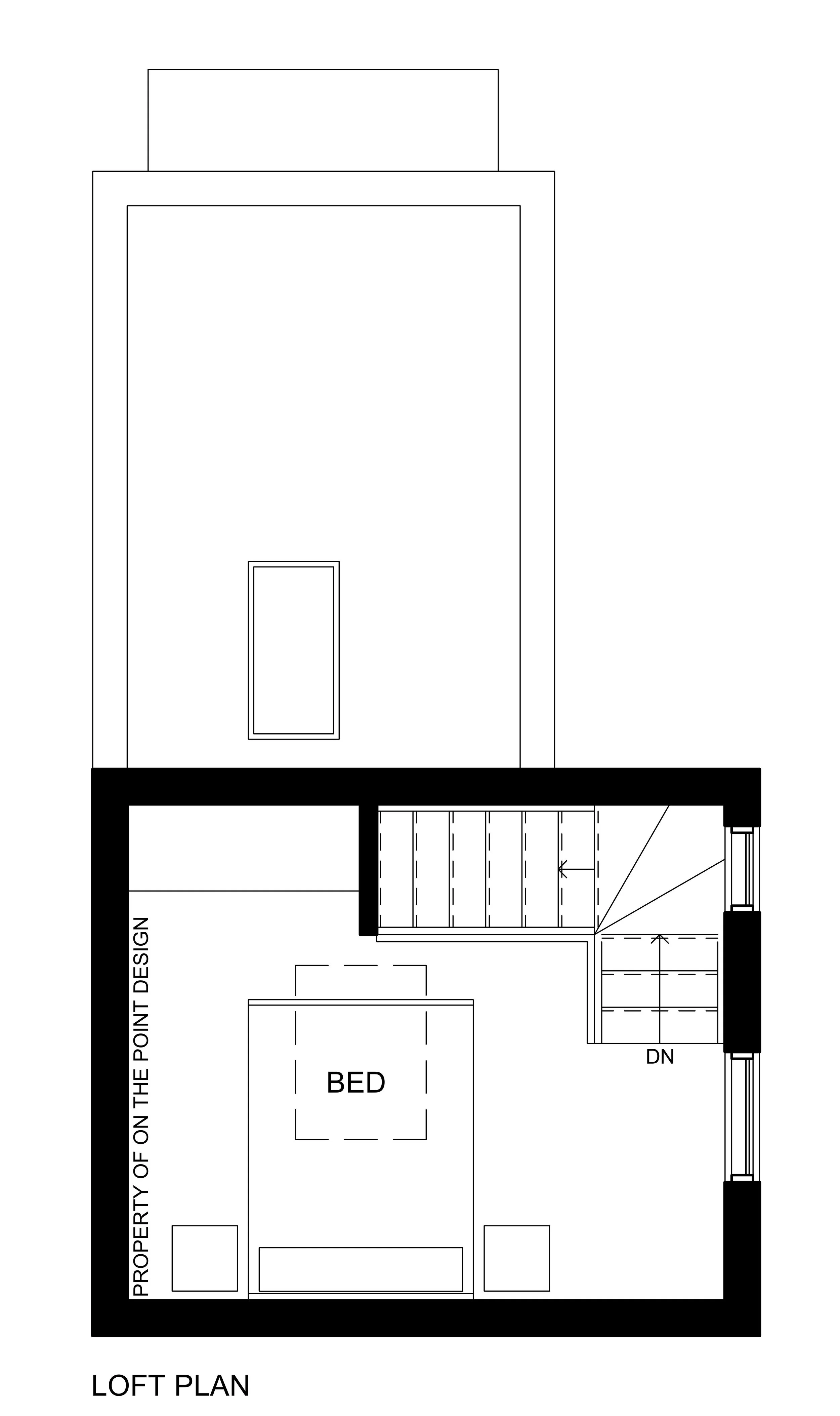
Woodbine Heights Laneway Suite

Ground 345 sq.ft. | Second 199 sq.ft.

The 1.5-storey L-shaped laneway suite was molded around a unique lot in place of a dilapidated garage. The ground floor enters off the laneway and has an open concept kitchen/living/dining space with multi-functional furniture to make the most out of a compact space. There’s also a 3-piece bathroom with a shower. The stairs lead up to a second floor loft style bedroom complete with a built-in closet. 2 skylights bring daylight into the middle of the spaces on both floors. The exterior has a 2-tone black and dark grey metal siding facade which breaks up and defines the 2 volumes of the suite. The siding was placed vertically and horizontally to create visual interest. There’s also a roof overhang to create a covered front entry. The flat roof completes the modern aesthetic..

Previous
Previous

Fairbank Garden Suite 3 - In Construction

Next
Next

Junction Laneway Suite - In Construction