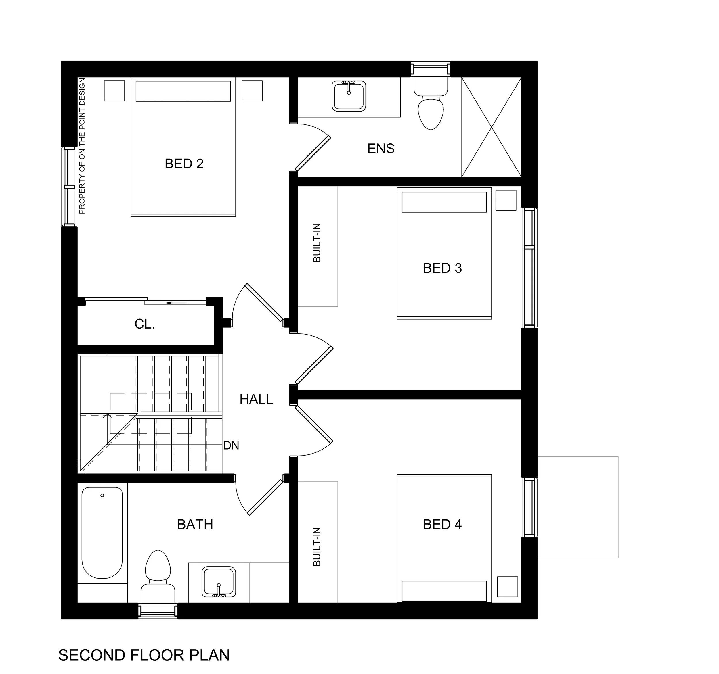
Fairbank Garden Suite 3
Ground 645 sq.ft. | Second 645 sq.ft.
This 2-storey garden suite is the maximum footprint achievable when there’s no more than 3 residential units on the lot. The ground floor enters into an open concept kitchen/living/dining space. There’s also a bedroom along with a 3-piece bathroom with a stacked laundry inside. The second floor has 3 more bedrooms and 2 bathrooms with 1 being an ensuite. A skylight over the stairs brings daylight into the hallway and back down to the ground floor. The modern exterior features a dark grey stucco with reveal lines along with wood siding accents. There’s also a sunken patio in the front and the entry door is covered with a black aluminum canopy with a wood soffit.