Design Development & Meetings

Once we have the information in the previous steps, we can start designing to the scope of the project. We typically do 3 design meetings.

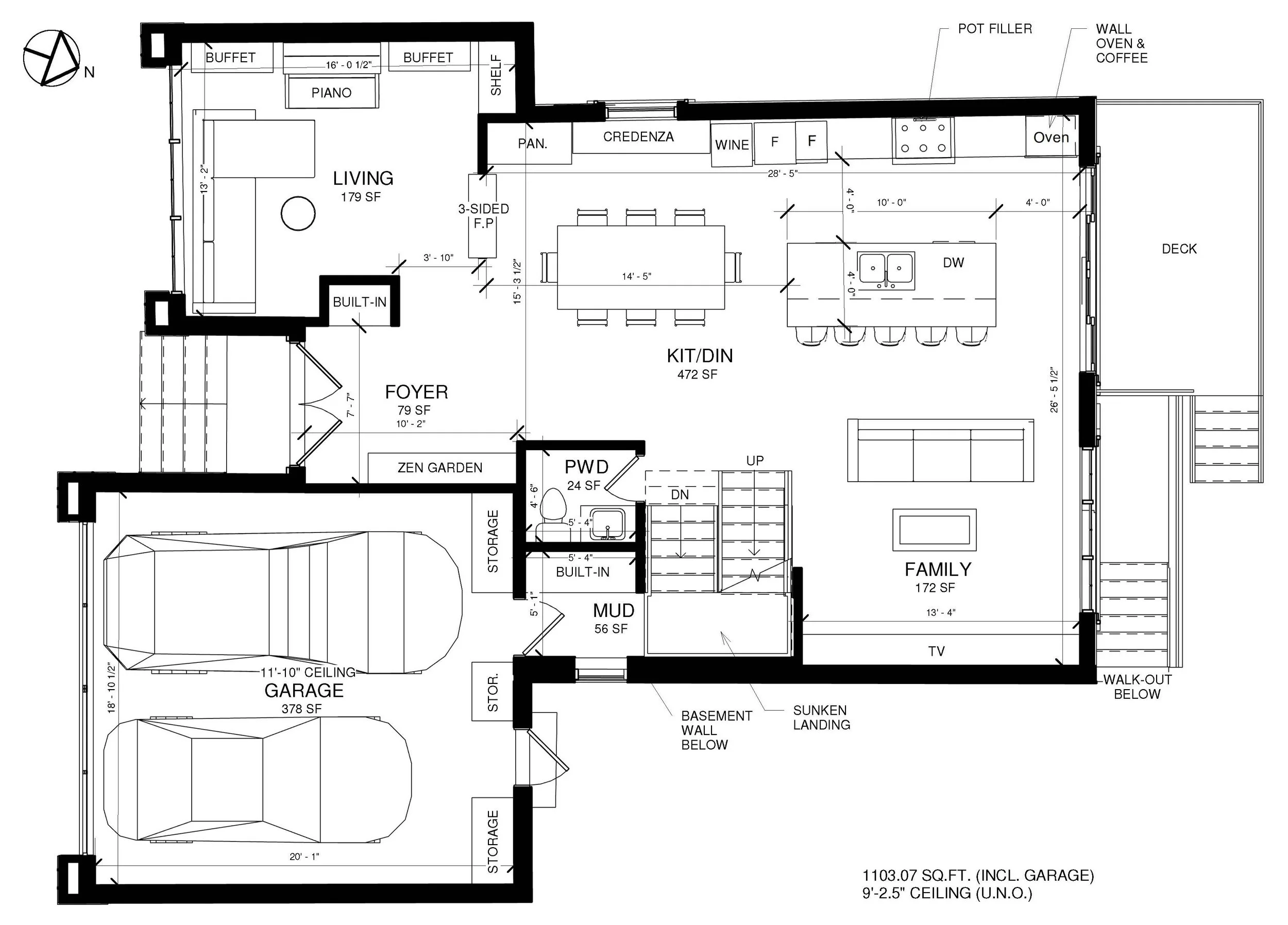
Design Meeting #1 - We start with a couple iterations of the floor plans along with b&w exterior massing as needed. This provides a couple options to choose from so we can develop the chosen plan further.

 

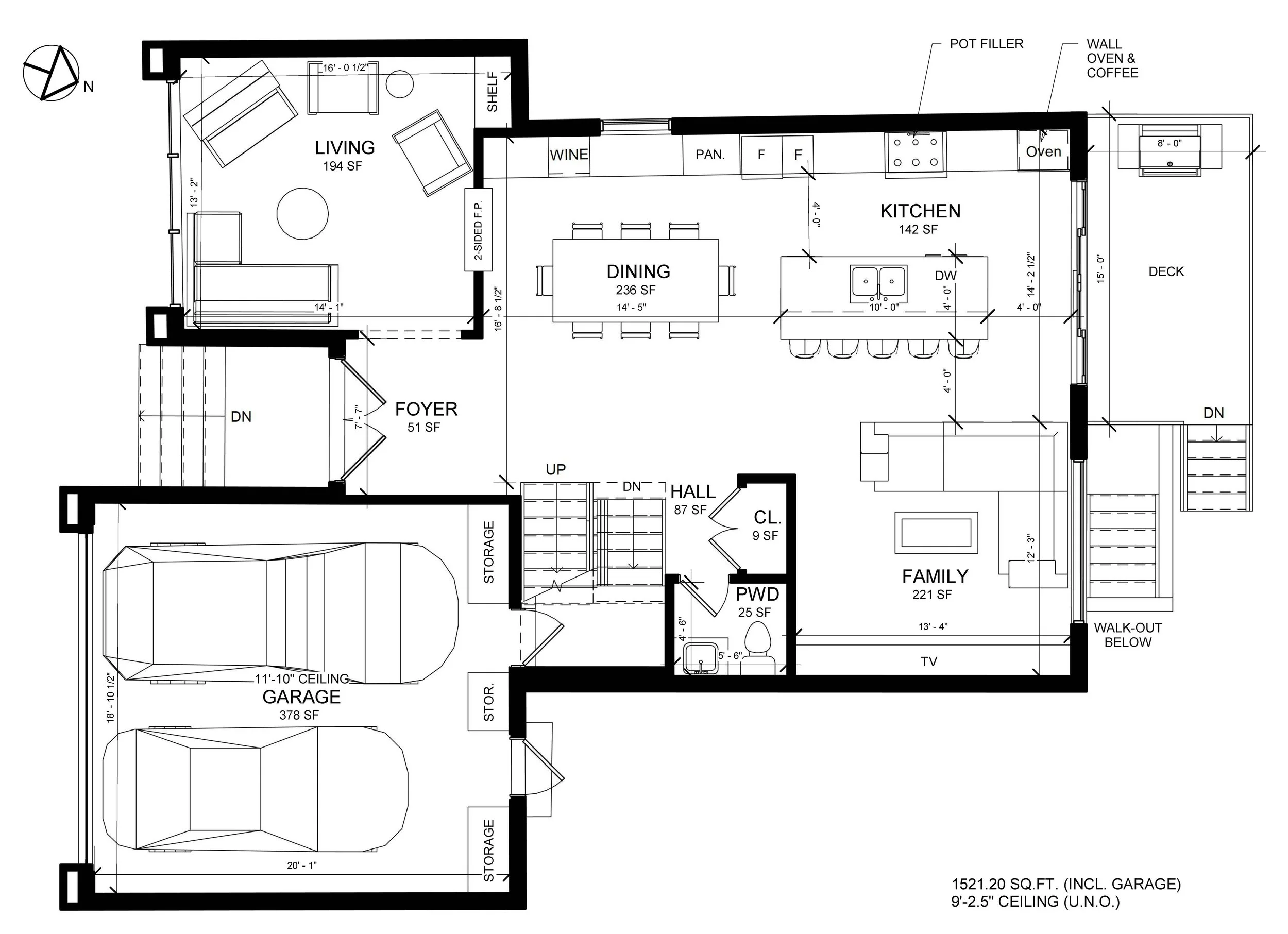
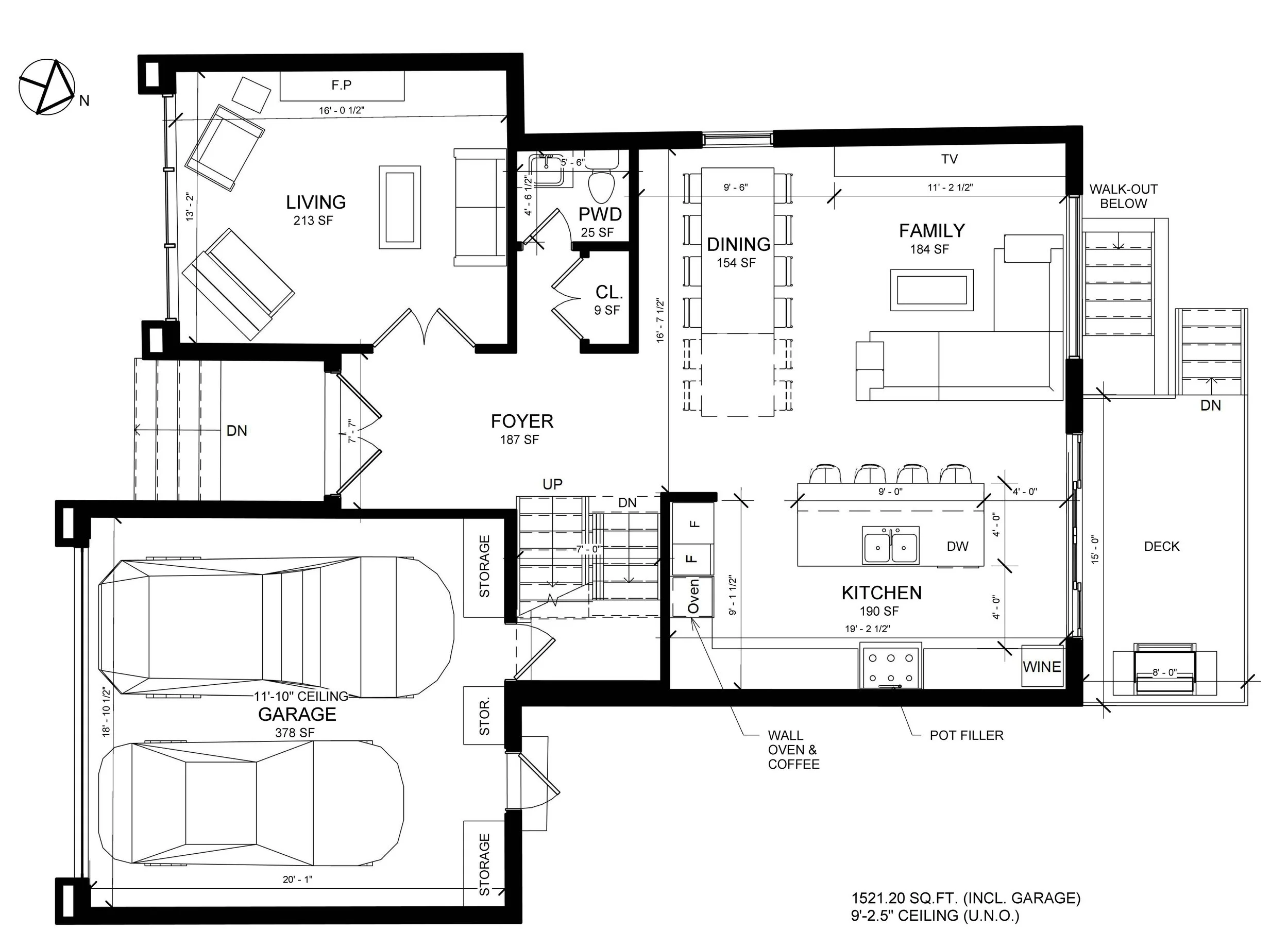
Design Meeting #2 - Now that we have a selected floor plan layout, we develop the floor plan and exterior massing further as needed. The goal is to hone into a final layout and exterior direction.

 

Design Meeting #3 - Now that the floor plan is finalized, we put together 3-D interior views and exterior renders as needed to help visualize what the end product will look like.

 
Previous
Previous

As-builts and/or Design Intake Meeting

Next
Next

Zoning/Construction Drawings & Municipal Review