Zoning/Construction Drawings & Municipal Review

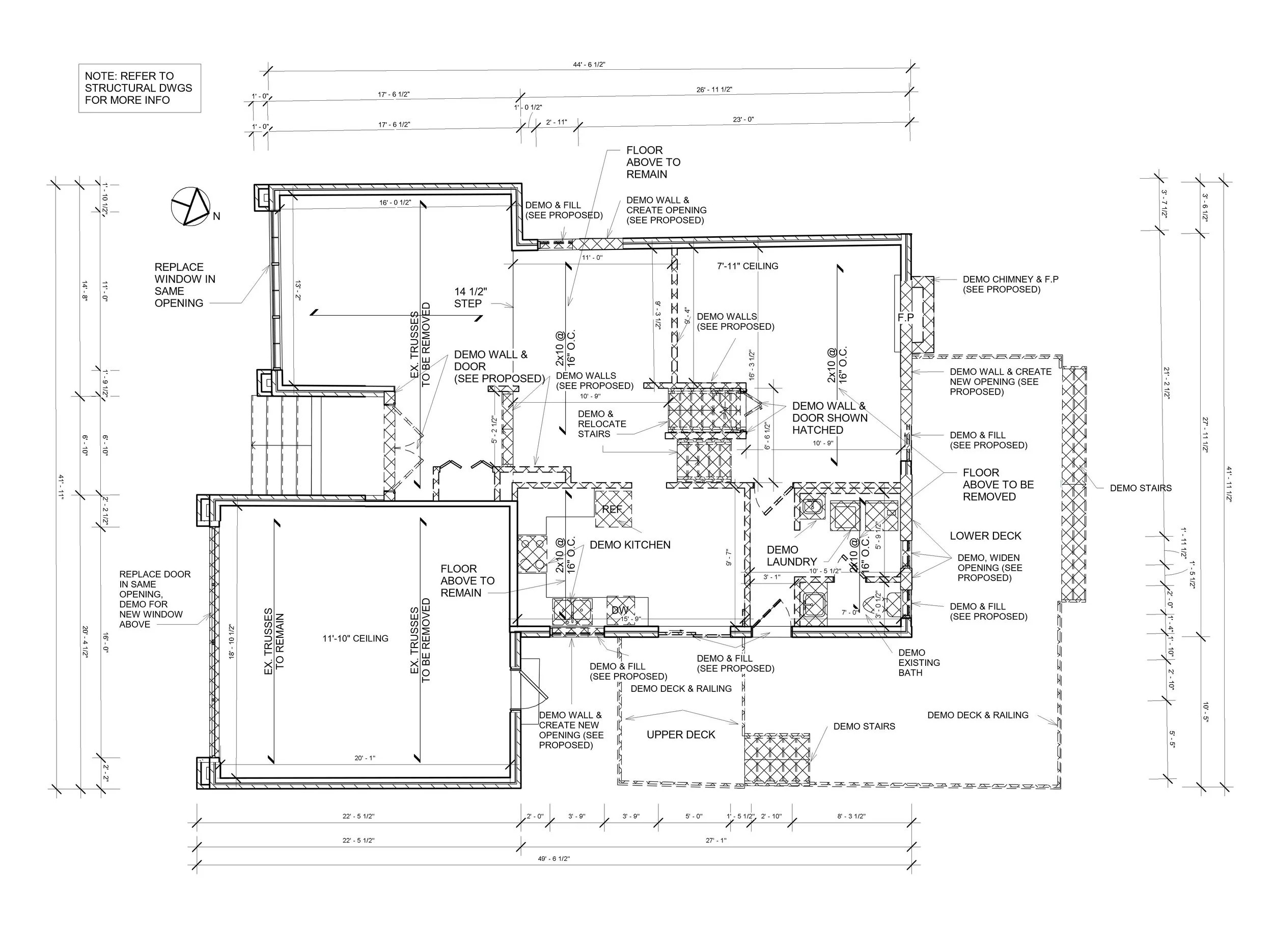
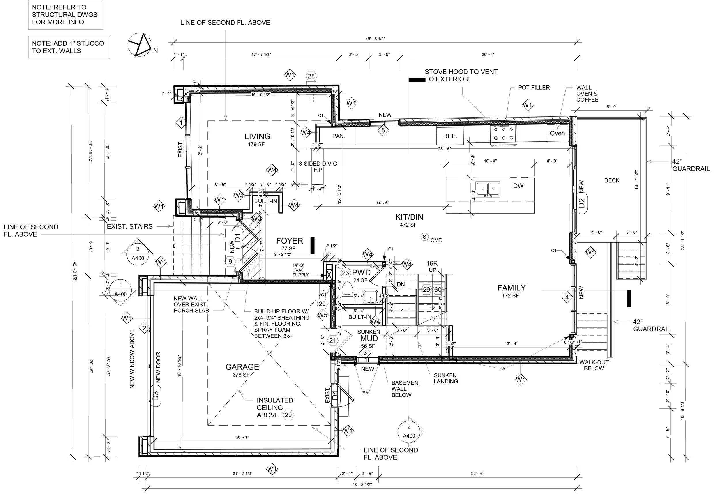
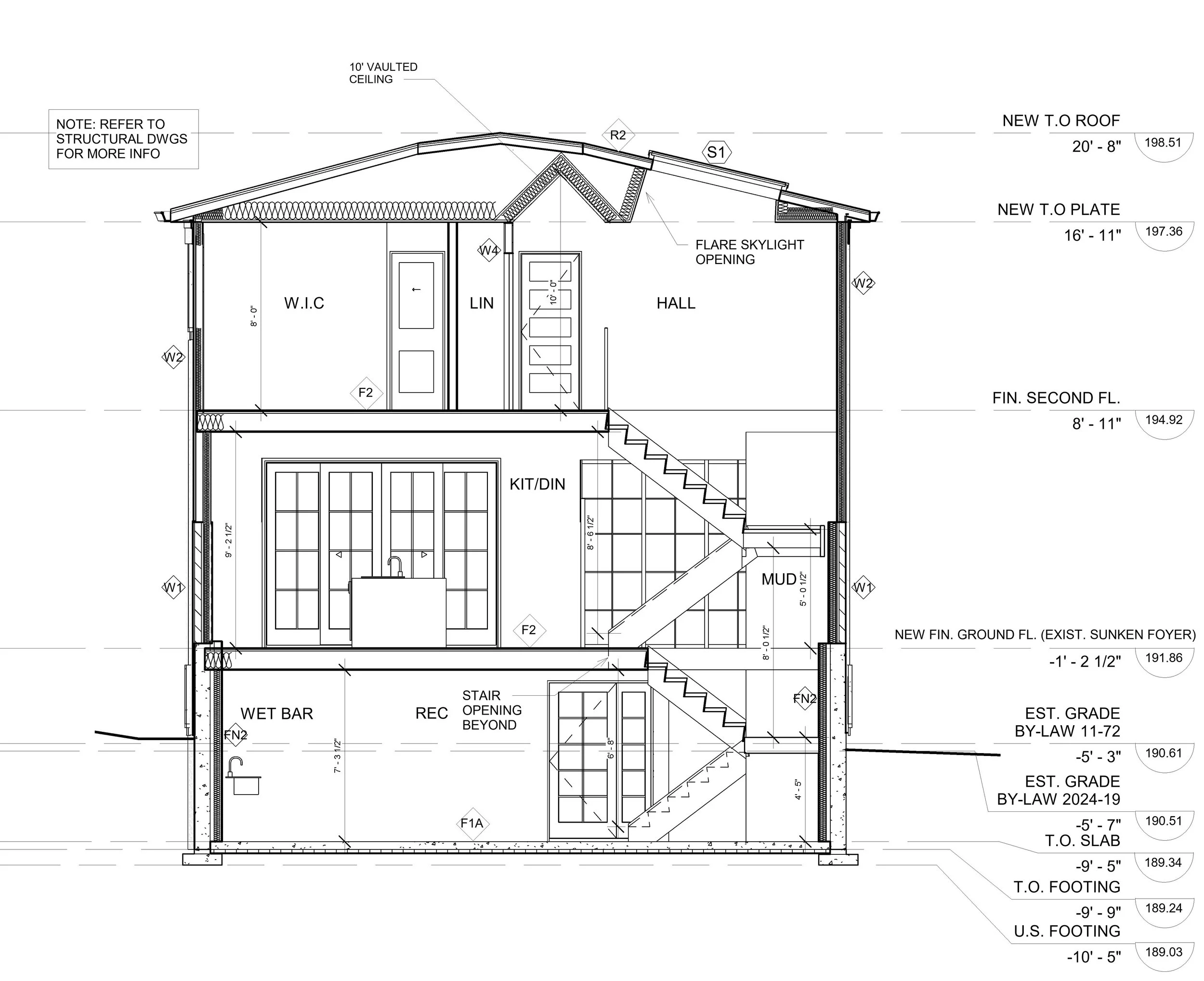
Once the design is finalized, it’s time to develop the drawings with the information required to obtain building permits from the municipality. Our drawing set includes a site plan, wall/floor/roof schedules, floor/roof plans, elevations, and building sections. We coordinate with consultants such as structural engineers, HVAC designers, and geotechnical engineers to put together a final cohesive package for municipal approval. We also work with any external authorities such as forestry and conservation bodies to acquire their approval as well.

Committee of Adjustment (if required) - C of A is a municipal process that provides relief from the zoning by-laws when they can’t be met. This allows us to ask for minor variances to increase the size of the house, addition, multiplex, laneway or garden suite that you’re looking to fit on the property. We research the neighbourhood context and work with city staff and neighbours to make sure we stay within a reasonable size that will have the best chance of getting approved.

Previous
Previous

Design Development & Meetings

Next
Next

Receive Building Permits & Begin Construction