Westmount Rear Addition

Basement 1415 sq.ft. | Ground 1855 sq.ft.

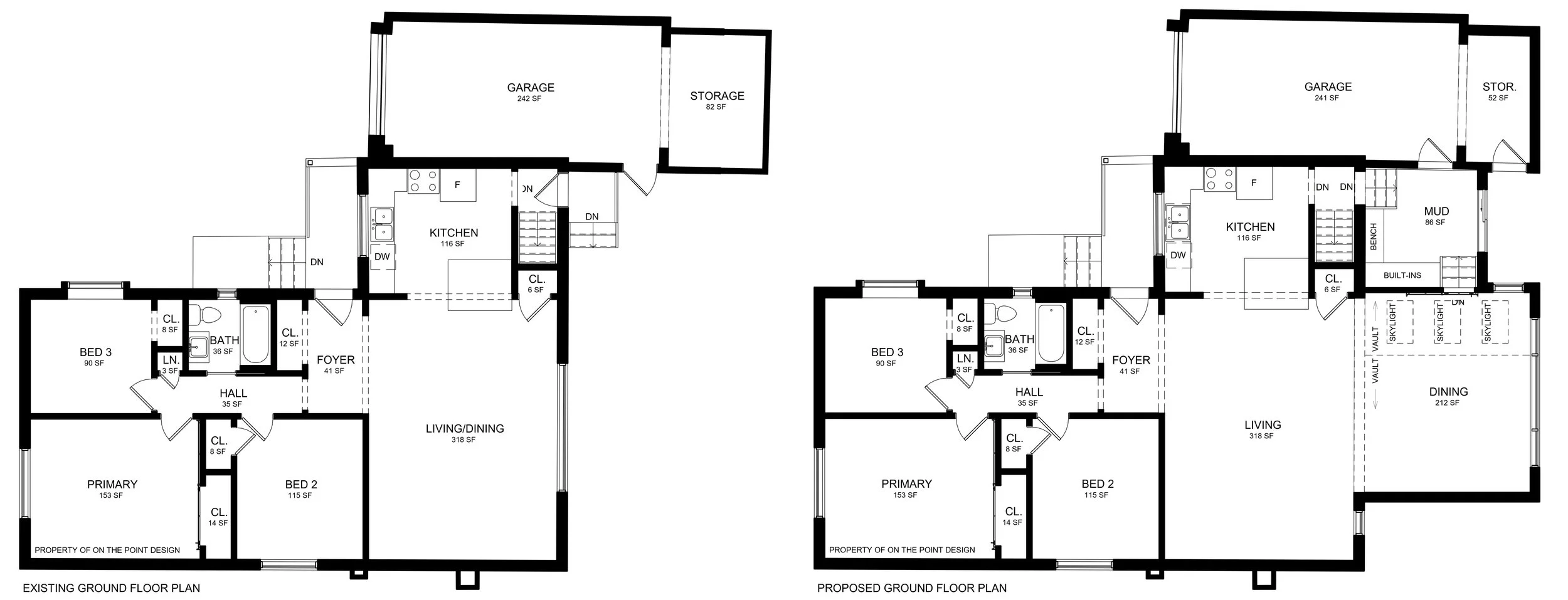
In order to support the growing family at this Etobicoke bungalow, we proposed a rear addition to add a new dining room with a sunroom feel due to the expansive windows, three skylights, and vaulted ceiling. There’s also a new sunken mudroom to create a seamless transition to the garage from inside the house instead of having to access it from the outside. In the basement, a bonus playroom space has been created for their two young children. From the street, the house maintains its original, traditional look but the isolated rear addition brings a new modern vibe with an asymmetrical roof peak and flat roof canopy to create a covered BBQ space. The cool grey and pine siding along with black windows and doors reinforces the modern look.

Previous
Previous

Little Italy Addition - In Progress

Next
Next

Tandem Garage Addition - In Progress