Ramara Lot Sever 2
Basement - 2011 sq.ft. | Ground - 2716 sq.ft. | Loft - 642 sq.ft.
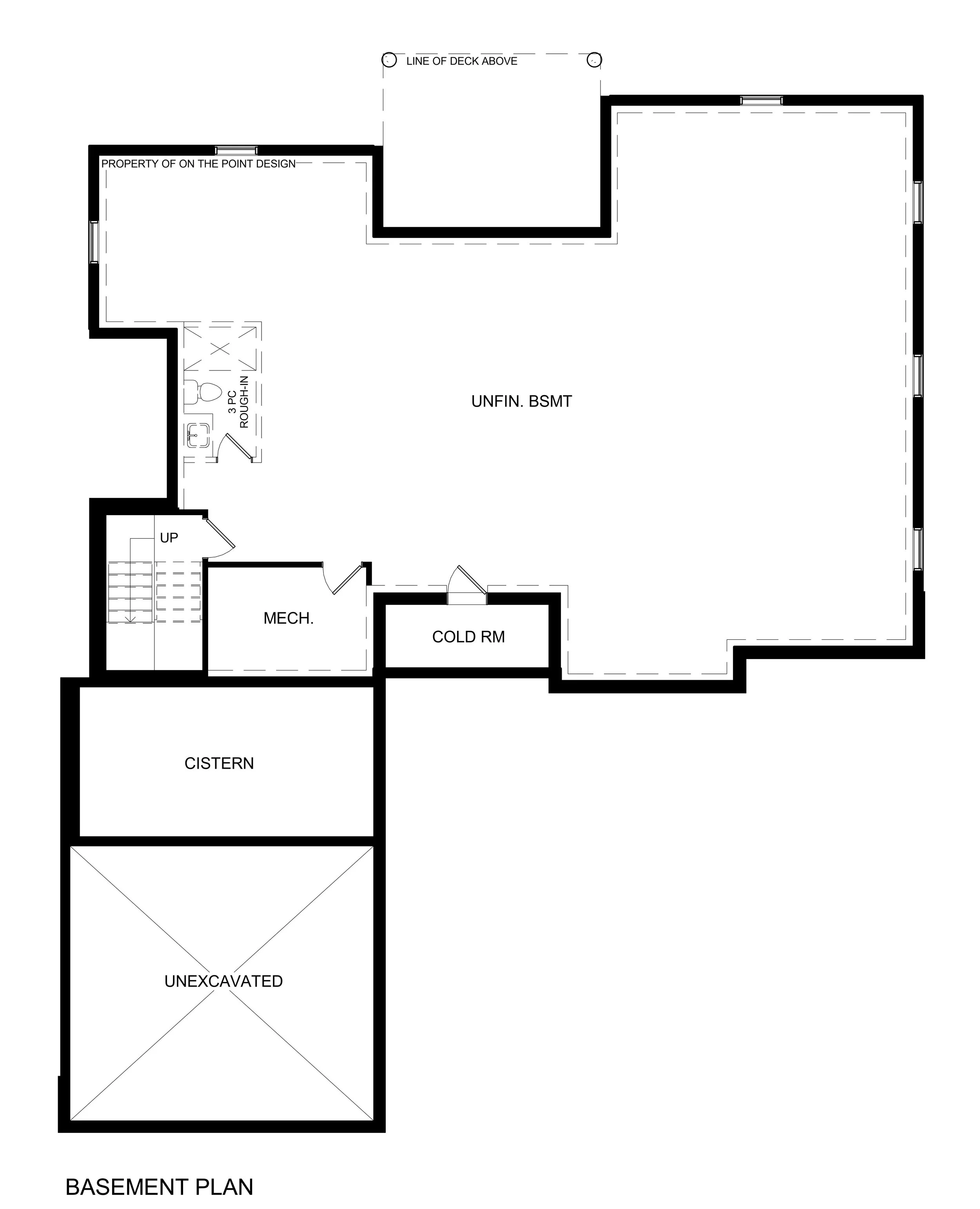
The 328’x328’ parcel of land was divided into 3 new lots with frontages of 109’. 3 new expansive bungalofts were placed on the site. The 8’ tall basement was left as a blank slate for the future owners. The 10’ tall ground floor features a 3-car garage which leads through the mud/laundry room into an open concept kitchen/living/dining space with a walk-in pantry behind the kitchen. A covered deck off the living room leads to the expansive 175’ deep backyard. The foyer holds the powder room and an entry closet which comes in off the covered front porch. The ground floor was divided between public and private spaces with the right side of the house holding 2 kid’s bedrooms with a jack and jill layout bathroom along with the primary retreat with a walk-in closet and 5-piece ensuite. The staircase was tucked off to the side to allow private entry to the basement and loft over the garage. The loft over the garage can have many functions from a home office to an artist’s studio or even a live-in nanny. It has a 3-piece bathroom, laundry space, and wet bar. Each house was done in its own exterior style to create variation in the streetscape. The left house has a craftsman style with wood detailing, grey siding, a grey brick base, and asphalt shingle roof. The middle house has a transitional style with dark grey siding, a stone base, and a black raised seam metal roof. The right house has a farmhouse style with board and batten siding, a stone base, wood accents, and asphalt shingle roof.