Etobicoke Custom Home

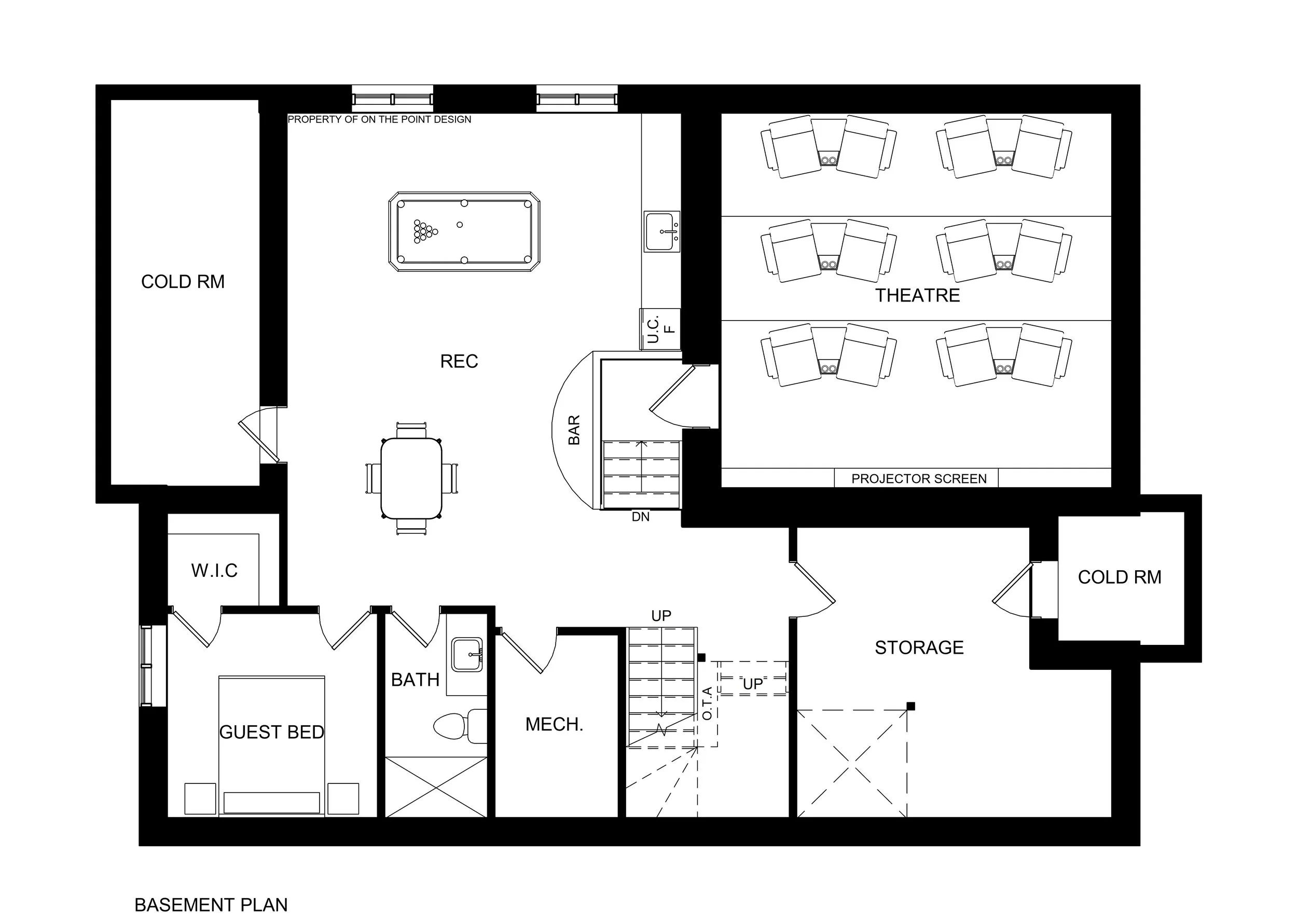
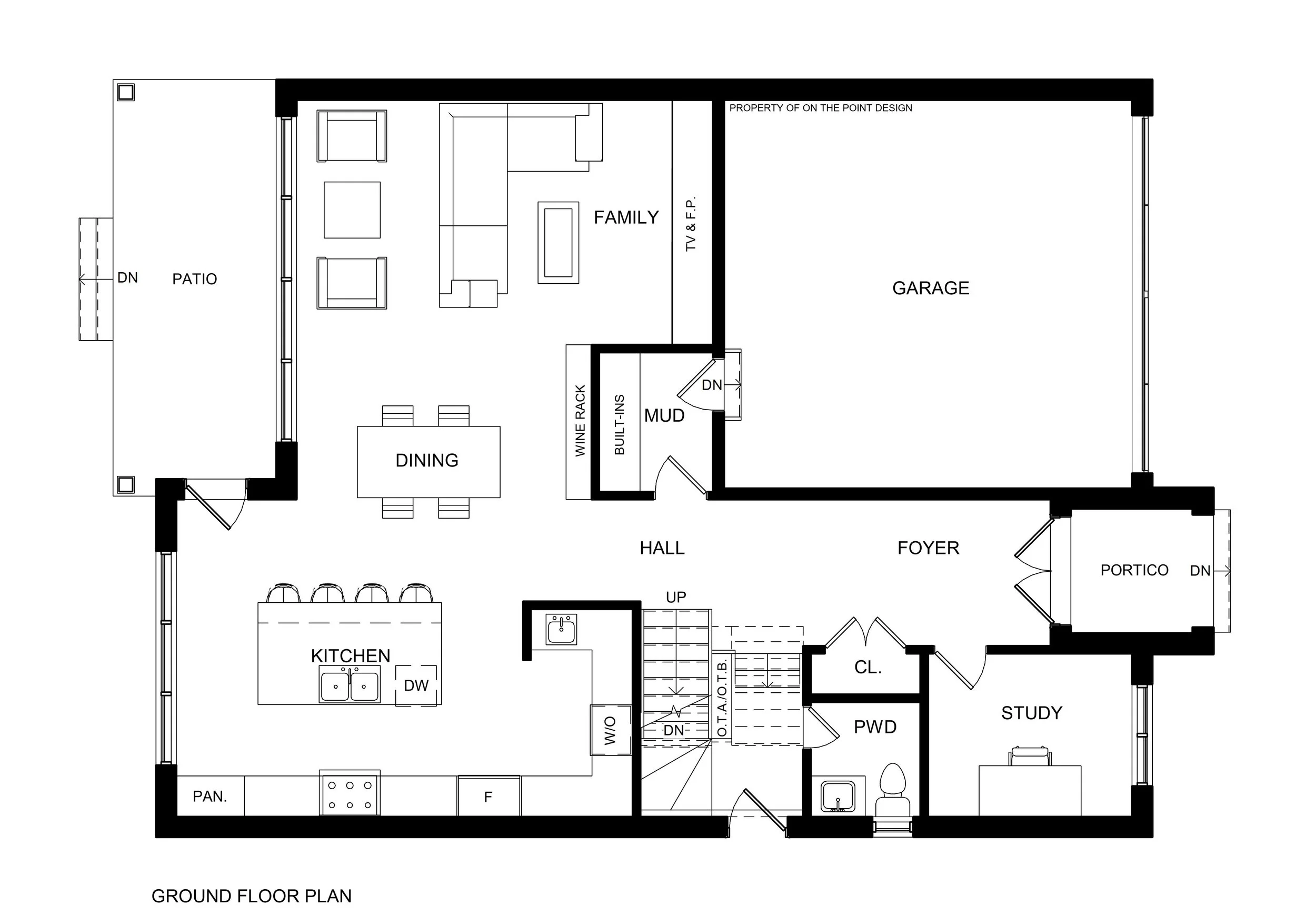
Basement - 1675 sq.ft. | Ground - 1675 sq.ft. | Second - 1666 sq.ft.

This 2-storey custom home was designed on a 50’ lot frontage. The basement has an open rec room space with a guest bedroom and bathroom along with a sunken home theatre under the garage. There’s also an abundance of storage space and 2 cold rooms. The ground floor has a 2-car garage with a mudroom along with a study and powder room off of the foyer. The rear of the home has an open concept kitchen, dining, and family space with a covered patio leading to the backyard. The second floor has 3 kid’s bedrooms with 2 bathrooms and a laundry room. The primary suite at the rear has a walk-in closet and 5-piece ensuite along with a seating area by the rear balcony. The exterior has a modern French chateau design with a limestone facade and trims along with a blue slate tile roof. The arches provide elegance to the front facade. The sides and rear take on a more modern look with beige brick and expansive glazing on the rear facade. The covered patio with a cedar soffit transitions out to the backyard pool.

Previous
Previous

Ramara Lot Sever 3

Next
Next

Willowdale Duplex - In Construction